
株式会社 Toivo(埼玉県さいたま市)

マンションでも木の家を。 マンションリノベ専門の工務店 ㈱TOIVO
家族が気持ちよさそうに過ごしている様子を見て、このリモデルを決断して本当に良かったと思っています。回遊できるキッチンも使いやすいです(ご主人)。可変性のある間取りなので、娘たちが独立した後も安心です。ジメジメしなくて快適に過ごしています(奥様)。小さくても自分だけの部屋ができてうれしい。床が温かくて気持ちが良いので、姉妹で座り込んで百人一首をするのがブームです(娘さん)。
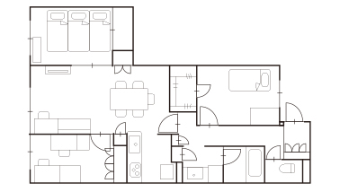
地下階に位置し、冬の寒さや夏の湿気にお悩みだった住戸。壁、床、天井に断熱施工を施し、内窓や断熱ブラインドを完備。暖房は床下、冷房は天井に流れるよう全室空調システムを導入しました。テラス側にLDKと小上がりの畳を配置し、家族が集える空間に。個室には可動式の家具を採用し、将来的に間取りを変更できるようにしました。
厳しい住環境を改善するための工夫が最大限に施されています。もともと入り組んでいた間取りもシンプルに整理されていて、家族のLDKは居心地の良い空間に。各自の部屋もコンパクトながら確保されていて、プランニング面でも非常に優れた作品です。

マンションでも木の家を。 マンションリノベ専門の工務店 ㈱TOIVO