
株式会社 Toivo(埼玉県さいたま市)

マンションでも木の家を。 マンションリノベ専門の工務店 ㈱TOIVO
出勤前に、ストレッチや朝食、シャワーなど朝のルーティンが気持ちよく行えて、仕事がはかどります。帰宅したときには、玄関を開けると木の素敵な空間が広がり、疲れが取れます。休日も家でとことんリラックスでき、ソファに座って空を見て、心も体も癒されています。断熱の効果も実感していて、エアコン1台を稼働させてサーキュレーターを置くだけで、住まい全体の温度が一定に。こんなに快適に過ごせるとは驚きです。
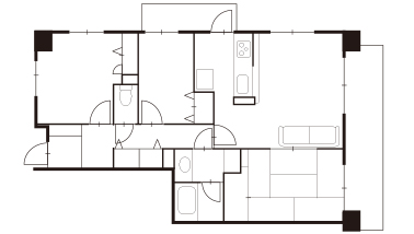
3方向に開口があり、暑さ、寒さが厳しいマンション最上階。全体的に断熱施工を施すとともに空気を循環させる換気設備を備え、温度や湿度の環境を整備しました。水まわりは中央に配置して南北へ通り抜けられる動線を確保し、眺望を生かしたプランに。浴室にはガラスドアを採用し、洗面室の窓から空を眺めて入浴できるように配置しています。
最上階角部屋のデメリットを解決しながら、メリットを最大限に引き出したプランニングが見事。東側の開口を生かした間取りは採光性、通風性が良く、室内の各所で快適性が確保されている印象。小下がりのリビングやガラスの浴室などの雰囲気も抜群です。

マンションでも木の家を。 マンションリノベ専門の工務店 ㈱TOIVO