
株式会社 Toivo(埼玉県さいたま市)

マンションでも木の家を。 マンションリノベ専門の工務店 ㈱TOIVO
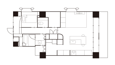
リモデル前はカーテンを開けることがほとんどありませんでしたが、窓から外の景色を楽しめるようになりました。夏の暑さ、冬の寒さも解消され、どの部屋にいても心地よいです。カウンターキッチンの雰囲気がお気に入りで、友人を呼んで楽しく過ごしています。家事室のおかげでLDKをスッキリ片付けることができ、リラックスできます。家事室内は頑張って片付ける必要がない点も助かっています。浴室はガラス越しに視線が抜けるので、広々として気持ちが良いです。毎日の入浴だけではなく、掃除も楽しみに変わりました。
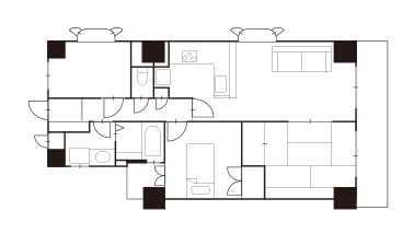
バルコニー側はインナーテラス+障子、玄関側は土間+簀戸による“中間領域”を居住空間との間に設けることで、角部屋の厳しい暑さ、寒さを緩和。浴室はガラス越しに羽目板が目に入る開放的なリラックス空間に。キッチン家電は引戸の収納に収め、隣接する家事室に洗濯機など生活感のあるものを集約するなど、LDKを美しく保てるように配慮しました。
木材を使った内装が美しく、マンションリモデルには留まらない質の高い仕上がり。浴室はハーフユニットバスを採用しながら、すべてオリジナルで仕上げたような完成度。必要最低限の寝室、広々としたLDK、家事室など一人暮らしに合わせた間取りも秀逸。

マンションでも木の家を。 マンションリノベ専門の工務店 ㈱TOIVO