
株式会社 光テック(高知県高知市)

みなさまの夢をリフォームで実現みなさまの描く夢の空間を私たちのマジックでリフォームいたします。
キッチンとリビングがつながり、家族と自然に会話ができるようになりました。動線や収納も整って、家事がとても楽に。配膳台はワークスペースにも使えて便利で、アンティークの食器棚も空間にしっくりと馴染んでいます。ウィリアム・モリスの壁紙や赤色のタイルに囲まれる時間はカフェにいるようで、普段の暮らしが心地よく、家にいるのが楽しみになりました。
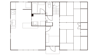
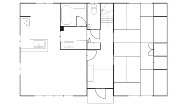
キッチンとリビングダイニングを隔てていたL型キッチンをI型に変更。料理中も家族と会話が生まれるオープンな空間に。ダイニングとの間のカウンターは、配膳や片付けなどの家事効率向上だけではなく、在宅ワークやお子さんの勉強にも活用できるように設置。インテリアはアンティークの食器棚を中心に、クラシカルな世界観にまとめました。
Ⅰ型キッチンへの変更により、リビングダイニングからキッチンまで一体感が生まれ、広がりが感じられる空間に一新されています。キッチンの奥に設置したパントリーやダイニングとの間のカウンターも、家事効率アップに有効なアイデア。

みなさまの夢をリフォームで実現みなさまの描く夢の空間を私たちのマジックでリフォームいたします。