
株式会社 光テック(高知県高知市)

みなさまの夢をリフォームで実現みなさまの描く夢の空間を私たちのマジックでリフォームいたします。
想像以上のデザインや発想に驚きました。古い家がここまで生まれ変わるとは思っていなかったので、完成した今も感動しています。特に、組子を生かした玄関や遊び心のあるパントリーは、私たちだけの特別な空間になりました。遠方からのやり取りでしたが、ZOOMやSNSで細かく対応していただいたおかげで安心して進められました。「帰りたくなる家」をテーマにリモデルしていただきましたが、完成した家はテーマそのもの。これからの暮らしが楽しみです。
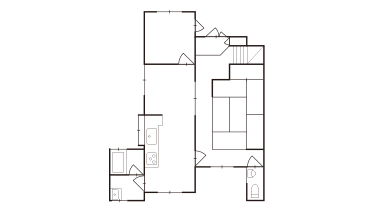
築70年の古民家を、既存の良さを残しながら快適に暮らせる住まいへ。和室とダイニングを一体化し、大空間のリビングダイニングに。キッチンと隣接してパントリーを設け、冷蔵庫をその中へ収めました。玄関ホールは“住まいの顔”として捉え、組子建具をタイルと組み合わせて壁面デザインに再利用。伝統とモダンが調和する空間を目指しました。
古民家ならではの趣の中に、現代的な快適性を融合。大空間のリビングダイニング、壁紙や組子のあしらいなど、遊び心の感じられる個性的な住まいに生まれ変わりました。耐震補強や断熱改修も施され、住まい全体の性能も高められています。

みなさまの夢をリフォームで実現みなさまの描く夢の空間を私たちのマジックでリフォームいたします。