
e-life 三和商事株式会社(兵庫県豊岡市)

女性プランナーが提案する、住まいのプラン
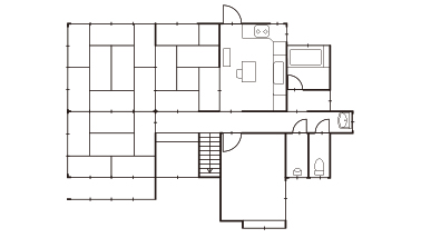
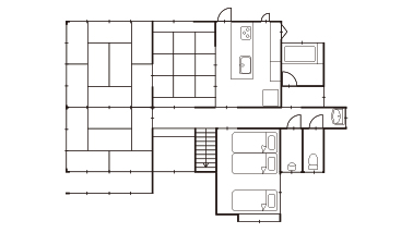
ダイニングと居間の間の建具を開放できるようにして、キッチンは対面式に。高齢のご両親の様子を、キッチンから見守れる配置にしました。窓や勝手口は断熱性能の高いサッシに入れ替えて冬の寒さを軽減。居間の床は半帖畳と板の間を組み合わせ、キッチンにはペンダント照明を採用するなど、モダンで落ち着いた雰囲気を演出しました。
高齢のご両親との生活を考えて、空間構成は大きく変更せずに開放感を演出したプランに優しさが感じられます。断熱性能の向上に加え、和モダンのインテリアも温もりにあふれ、心地よく生活できる空間に生まれ変わっています。

女性プランナーが提案する、住まいのプラン