
e-life 三和商事株式会社(兵庫県豊岡市)

女性プランナーが提案する、住まいのプラン
工事中に両親も問題なく生活できるのか不安がありましたが、住みながら工事できるようにいろいろと配慮していただき、助かりました。この開放的な空間で、両親とも会話しながら家事ができるので気分も明るくなります。母も最初は慣れない様子でしたが、今ではうれしそうにキッチンに立っています。仕事をしながら家事をするのが負担でしたが、今は家に帰るのが楽しみです。断熱性能も高まり、冬の暖かさが驚くほど変わりました。思い切ってリモデルして本当に良かったです。
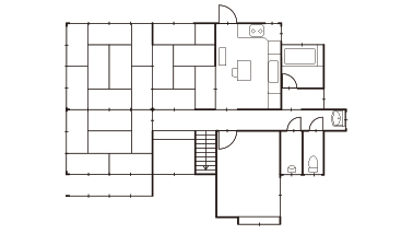
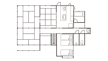
高齢のご両親と前向きに生活できるように、空間構成は大きく変更せずに開放感を演出しました。ダイニングと居間の間は建具を開放できるようにして、対面キッチンから居間の様子を見守ることができるレイアウトを採用。床は半帖畳と板の間を組み合わせ、モダンで落ち着いた雰囲気に。キッチンにはペンダント照明を採用しました。
見守りを優先した配置、半帖畳やキッチンのペンダント照明を採用した空間など、随所に優しさと温もりが感じられます。ご両親にストレスをかけないように、施工中は別の部屋にキッチンを仮設するなど生活空間を確保しながら進めた配慮も好印象。

女性プランナーが提案する、住まいのプラン