
株式会社 スタイル工房(東京都杉並区)

リフォーム・リノベーション・新築を設計から施工まで一貫して請け負う、住まいづくりの専門店。
引き戸が中心の回遊動線のため、部屋中に風がよく通るようになりました。実家で使用していた栃の座卓に高い足を付け直してダイニングテーブルに加工したり、すだれも空間のアクセントとして活用されていて、親戚が集まった際には「快適な住まいになった」と、とても好評です。
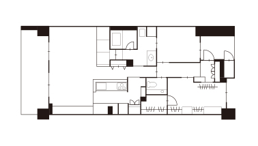
洋室をLDKに取り込み、広々とした空間に。一角に小上がりを設け、実家で使用されていたすだれを目隠しに活用。ゲスト用の寝室としても利用できるようにしました。小上がりには室内窓を設けて通風を確保。回遊動線を取り入れてさらに通風に配慮するとともに、使いやすさも両立させました。洋室をクローゼットとして整え、衣類の収納力を高めています。
南北に開口のある住居ですが、回遊動線と適所に設けた室内窓で通風を綿密に計画。玄関など暗くなりがちな空間に光も届き、心地よさを生み出しています。LDKの小上がりは収納も兼ねた便利なスペース。毎日の生活にくつろぎをもたらしてくれそうです。

リフォーム・リノベーション・新築を設計から施工まで一貫して請け負う、住まいづくりの専門店。