
株式会社 スタイル工房(東京都杉並区)

リフォーム・リノベーション・新築を設計から施工まで一貫して請け負う、住まいづくりの専門店。
以前のキッチンは使い勝手が悪く、イライラすることもありましたが、今は料理をする時間が楽しいです。収納が充実したおかげで片付けがラクになり、部屋もスッキリしています。リモデルした箇所で、「これはやめておいた方がよかったかも…」という後悔もありません。リビングで音楽を聴きながらコーヒーを飲んでゆったり過ごすなど、時間の使い方も変わりました。
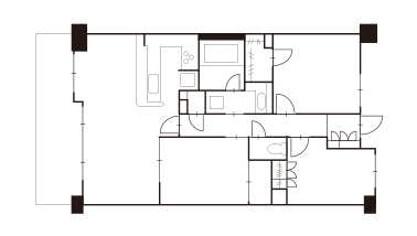
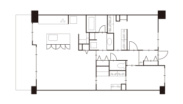
お子さんが独立し、夫婦二人の新生活に合わせて間取りを見直し。洋室を取り込んでスペースを拡張したLDKには、セパレート型のキッチンを採用し、広い作業スペースを確保。リビングから見えない位置にパントリーも備えています。普段使いの洋服用、季節外の洋服や布団用と、使い分けできるウォークスルークローゼットを2か所に設置しました。
大容量のウォークスルークローゼットを中央に2か所設けることで、収納力だけではなく、通風や生活動線の効率化など上手く機能させています。お手持ちの家具に合わせた北欧テイストのインテリアもセンスよくコーディネートされ、魅力的な仕上がりです。

リフォーム・リノベーション・新築を設計から施工まで一貫して請け負う、住まいづくりの専門店。