
株式会社 森本工務店(岡山県倉敷市)

『木の素材の良さ』を実感して頂ける住まいづくりで、『快適・安心』をご提供。地域に根付いたNo.1工務店です。
とっても快適に過ごせて、お家時間が大好きになりました。子どもたちも、広くて暖かい家で毎日とても楽しそうにしています。リビングは天井を高くしてもらったことで、より広々と感じられます。吹抜けから光が差し込む、明るく広いリビングという夢がかないました。玄関は以前の面影を残してもらったおかげで、懐かしさと趣のある空間になりました。照明やタイルなど水まわりの設備も気に入っています。私たちの“したい”をすべて形にしてくれて、本当に過ごしやすい最高の家になりました。
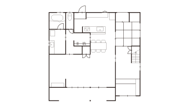
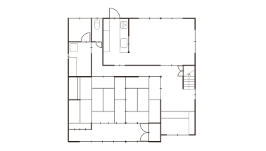
広々としたLDKをコの字型に配置。吹き抜けの窓から光が差し込む明るいリビングに隣接して、マグネット対応の壁を採用したキッズスペースを設けました。LDKと洗面脱衣室をつなぐ空間にウォークスルークローゼットを配置し、家事動線をスムーズに。玄関は状態の良い格天井や床をそのまま生かし、思い出を継承する趣のある空間に仕上げました。
吹き抜けを設けることで、開放感のある快適な住まいに一新。大胆な間取りの変更によりキッズスペースやウォークスルークローゼットを実現し、子育て世帯のご家族の利便性を高めています。玄関など既存を再利用した部分も、美しく魅力的です。

『木の素材の良さ』を実感して頂ける住まいづくりで、『快適・安心』をご提供。地域に根付いたNo.1工務店です。