
株式会社 森本工務店(岡山県倉敷市)

『木の素材の良さ』を実感して頂ける住まいづくりで、『快適・安心』をご提供。地域に根付いたNo.1工務店です。
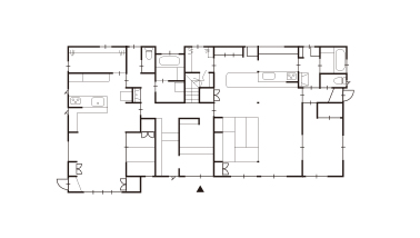
父の代からの虹梁や天井板、大黒柱を残すことができ、毎日懐かしさが感じられる一方で、広いキッチンや使いやすい造作家具、段差のない間取りで快適に過ごしています。孫たちと一緒に食事をする機会が多いので、仕切りをなくして広くしたリビングは大正解でした。4世代7人で賑やかに安心して過ごせる住まいに大満足です。
築80年以上の実家を、4世代7人が暮らす二世帯住宅にリモデル。段差や天井の低さは、母屋の床を下げることで解消。既存の梁や天井を一部残し、古民家の趣を生かした空間を実現しました。玄関と階段の位置を大きく変更し、親世帯と子世帯のスペースを振り分け。親世帯のLDKは家族が集うゆとりのスペースを確保し、折り畳みテーブルも造作しました。
玄関を軸にした二世帯のゾーニングが巧み。親世帯、子世帯ともに、古民家の良さと現代の暮らしやすさを融合した仕上がりが見事で、ご家族の住まいへの愛着を丁寧にくみ取っている様子がうかがえます。もとの雰囲気が色濃く残る外観も素晴らしい完成度。

『木の素材の良さ』を実感して頂ける住まいづくりで、『快適・安心』をご提供。地域に根付いたNo.1工務店です。