
株式会社 近畿ハイム・テック千里(大阪府豊中市)

リフォームコンテスト37年間連続受賞!!『テック千里』は創業以来47年間、大阪府豊中市を中心に(吹田・箕面・大阪・池田・川西・北摂エリア)の新築・リノベーションリフォーム・水廻りや収納等のリフォームを23,500件させていただいております。
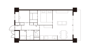
LDKがゆったりとして、エアコンダクトが見えなくなりすっきりしました。テレビの壁面も高級感があって気に入っています。仕事部屋には生活音が聞こえにくく、集中できます。北側ですが、壁面断熱とインナーサッシで結露もなく快適です(ご主人)。リビングダイニングへの通路になるキッチンも、ホワイトと木目柄の天井で圧迫感がなく、お客様をお招きできる空間になりました。洗面もトイレも好みのグレージュでまとまり、とてもうれしいです(奥様)。
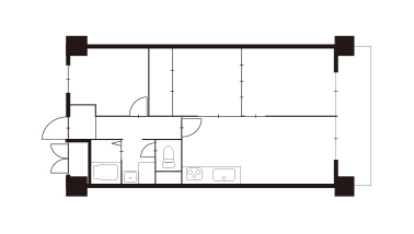
LDKと和室を一体化し、ゆとりのあるくつろぎの空間に。露出していたエアコンダクトを垂れ壁で隠し、間接照明を設置。凹凸のある壁材を一面に採用し、間接照明の温かい光が照らすように組み合わせました。在宅ワーク用の仕事部屋は、寝室との間にウォークインクローゼットを設け、物音などが気にならないよう配慮しています。
仕事部屋とLDKを離して配置し、オンとオフが切り替えやすい構造に。LDKは優しい色使いでコーディネートし、高級感のある空間を生み出しています。エアコンダクトやキッチンの下がり天井など気になる部分を空間に溶け込ませたアイデアも光ります。

リフォームコンテスト37年間連続受賞!!『テック千里』は創業以来47年間、大阪府豊中市を中心に(吹田・箕面・大阪・池田・川西・北摂エリア)の新築・リノベーションリフォーム・水廻りや収納等のリフォームを23,500件させていただいております。