
リトルハピネスリノベーション/ライフデザイン株式会社(愛知県長久手市)

【リトルハピネス リノベーション】はこだわりが詰まった自社施工のカフェの中にあり、工事の完成度とお客様に寄り添う姿勢を第一に考えております。(Googleマップのクチコミ⇒4.6)カフェの雰囲気を気に入っていただいたお客様からのご依頼が増えております!
定年を迎えたら浴室をリモデルしたいと考えていたのですが、相談した会社からは階段のせり出しが原因で断られていました。TOTOショールームで知った施工会社さんに問い合わせしたところ、「お風呂と洗面所を入れ替える」という提案をいただき驚きました。それ以外にも、窓や収納について細かい要望をお伝えしましたが、対応してくださり大変満足しています。おかげで家族みんな新しい浴室を気に入っており、入浴時間がぐんと長くなりました。
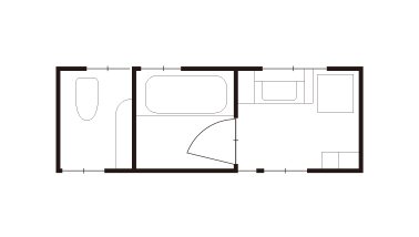
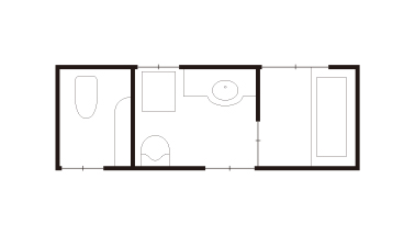
2階への階段がせり出している在来工法の浴室。このままではシステムバスが設置できないため、浴室と洗面脱衣室の位置を入れ替えることに。浴室はラグジュアリーなイメージにまとめ、FIX窓を設置して自然光を取り入れました。洗面脱衣室は階段のせり出し部分が影響しないように、すき間を最大限活用して無駄のないサイズで収納を配置しました。
システムバスが設置できないという問題に柔軟に対応した提案力が光ります。洗面脱衣室の収納は変則的な空間を無駄なく活用。洗濯機横にホースや脚立を収めたり、タオルのサイズに合わせたキャビネットも機能的。特注家具も面材を揃え、統一感を生み出しています。

【リトルハピネス リノベーション】はこだわりが詰まった自社施工のカフェの中にあり、工事の完成度とお客様に寄り添う姿勢を第一に考えております。(Googleマップのクチコミ⇒4.6)カフェの雰囲気を気に入っていただいたお客様からのご依頼が増えております!