
喜多ハウジング株式会社 福井店(福井県福井市)

喜多ハウジング株式会社 福井店
陶磁器を飾るスペースがたくさんできてうれしいです。ゆとりのある快適な空間になり、夫婦ともに気持ちよく過ごすことができています。ゆったりとした時間の中で過ごすことが、私たちにとっての最高の贅沢だなと感じています。
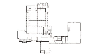
ご両親から受け継いだ家の安全性を高め、終活を念頭にプランニング。和室のつながる間取りを大幅に変更して生活空間を集約し、エリア断熱を施しました。寝室も完備し、1階だけで生活できるように配慮。ご夫婦の趣味である陶磁器を日常的に鑑賞できるように生活動線上にギャラリースペースを設え、広さを生かしたゆとりのある間取りを採用しました。
広さはあっても上手く活用されていなかったお住まいを一新。ゆとりのあるLDKを中心に、生活しやすく間取りが整理されています。寝室も1階に設けたことで、将来的にも安心。耐震性の補強、エリア断熱も施され、住み続けていくことへの不安が解消されています。

喜多ハウジング株式会社 福井店