
株式会社 さくら住宅(神奈川県横浜市)

横浜市、鎌倉市、逗子市を中心にリフォームを通して、たくさんのお客様からの笑顔と喜びの声をいただけるよう、スタッフ一同頑張ります。リフォームや住まいに関することだけではなく、ライフスタイルやトータル的なご提案でお手伝いさせていただきたいと思っております。
最初は水まわりだけのリモデルを考えていましたが、私たちのニーズを把握して、センスの良い提案をいただき、水まわり以外もリモデルすることにしました。自宅に住みながらリモデルしましたが、丁寧に対応いただいたので安心して進められました。昭和の雰囲気だった住まいが、令和のモダンなマンションになり、毎日とても快適に過ごしています。
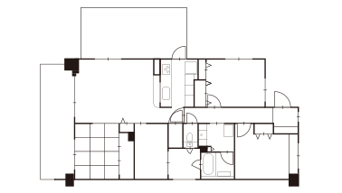
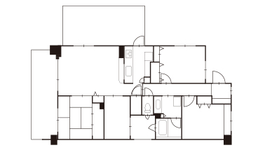
老朽化した水まわりを中心に、小さな不満の数々を解消。共働きのご夫婦のため、家事の負担を軽減する機能を搭載した設備機器をセレクト。開き扉が多く、無駄なスペースが多いキッチンは、ご夫婦一緒に作業がしやすいように動線と収納力を考えてプランニング。リビングに隣接した和室はグレーの調湿タイルと琉球畳で和モダンな印象にまとめました。
水まわり機器を入れ替えるだけではなく、家事の負担軽減を考えて丁寧に提案されています。照明や窓のブラインドに木の質感を取り入れ、キッチンも木目柄で統一。ミニマムな暮らしを好むお施主様の暮らしに、落ち着きを演出しています。

横浜市、鎌倉市、逗子市を中心にリフォームを通して、たくさんのお客様からの笑顔と喜びの声をいただけるよう、スタッフ一同頑張ります。リフォームや住まいに関することだけではなく、ライフスタイルやトータル的なご提案でお手伝いさせていただきたいと思っております。