
リノままby東京テアトル(東京都新宿区)

【映画会社 東京テアトルがリノベーション】家づくりからずっと先の暮らしまで
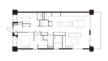
キッチンがとにかく快適になりました。以前は狭くて暑かったのですが、開放感があり、夫婦で立っても問題ありません。寝室も少し廊下側へ拡張したことでベッドの向きを変更でき、動線がかなり快適に。断熱性能や二重窓の効果もこれから楽しみです(ご主人)。キッチンもウォークスルークローゼットも、必要なものにすぐ手が届く設計で、家事がぐんとラクになりました。収納が多く、物がほとんど表に出ないのもうれしいです。洗面やトイレの動線も考えられていて、日々暮らしやすさを実感。見違えるようにグッと快適になりました(奥様)。
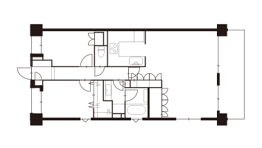
ご夫婦で料理ができるように、独立していたキッチンをリビングダイニングと一体感のあるアイランド型に。背面収納やパントリーなど、必要なものにすぐ手が届くように計画しました。廊下はできるだけ短くして、玄関土間との間に引戸を設置して温度差を解消。洗面台は廊下の動線上に配置して使いやすくするとともに、スペースを有効活用しました。
限られたマンションの空間を効率よく活用したプラン。アイランド型のキッチン、ウォークスルークローゼットなど、動線が重ならないように綿密に構成されています。お手持ちの家具や絵画がリモデル後も生かされていて、新しい部分と調和して空間を豊かにしています。

【映画会社 東京テアトルがリノベーション】家づくりからずっと先の暮らしまで