
株式会社 ユープラン(埼玉県志木市)

今だけのリフォームではなく 10年先の生活スタイルを考えてご提案します
見違えるほど明るく、きれいになり驚いています。リビング、ダイニングが過ごしやすくなり、快適すぎて家で過ごす時間が多くなりました。断熱性能も上がって、エアコンの効きも良いです。お風呂や洗面所も寒さを感じず、安心して入浴できるようになりました。お客様を気軽に呼べる素敵な家になったこともうれしいです。これから年を重ねていく私たちが、安心して過ごせる家になり大満足です。
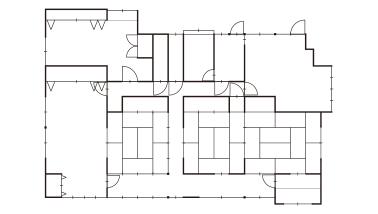
断熱性能の向上、バリアフリーなどに配慮し、築50年のお住まいを暮らしやすい環境に。和室2間を一体化して広いリビング空間を確保。一部を畳敷きにして来客時にはさらに広く使えるようにしました。DKとリビングの間、キッチンと洗面室の間にもそれぞれ開口を設け、アクセスを改善。トイレは大便器と小便器の個室を分けて使いやすくしました。
ご夫婦二人が暮らす上で生じていたさまざまなお悩みを一つひとつ解決。DKも、和室とつながるリビングも、いずれもゆとりがあり、断熱性能も向上して快適な環境に生まれ変わっています。水まわりも動線が整理され、ストレスのない生活を実現しています。

今だけのリフォームではなく 10年先の生活スタイルを考えてご提案します