
株式会社 石黒建築工房(宮城県仙台市)

仙台で注文住宅・リフォーム・リノベーション・店舗内装を始めて22年。暮らしをもっと楽に、もっと楽しくする石黒建築工房です。
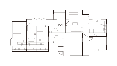
リビングの天窓から光が差し込むので、気持ちが明るくなりました。玄関ポーチまでのスロープは身体の負担が軽減され、とても助かっています。以前は2階に洗濯物を干していましたが、リビングに隣接するランドリールームのおかげで、とても便利になりました。夫婦の個室がクローゼットでつながっているのも程よく、お互いに安心感があります。
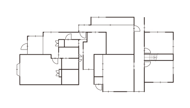
増改築により、動線が複雑になっていたお住まいの間取りを整理。玄関の位置を変更してアプローチをスロープに。廊下は直線に取り、幅を広げて移動しやすくしました。リビングは拡張して天窓から光を取り込み、ランドリールームを隣接させて洗濯動線を改善。ご主人と奥様の寝室はウォークスルークローゼットでつなぎ、安心感を高めました。
ご夫婦の将来も見据えて、安全に生活できるように整えられています。リビングは天窓の設置とともに、ランドリールームの引戸をガラスにしてさらに採光を確保し、心地良い空間に。ご夫婦の寝室は、間にクローゼットを配置することで程よい距離感が生まれています。

仙台で注文住宅・リフォーム・リノベーション・店舗内装を始めて22年。暮らしをもっと楽に、もっと楽しくする石黒建築工房です。