
有限会社 オガタ(三重県四日市市)

お客様一人一人にご満足いただけるこだわりの提案をさせていただきます。住まいの事なら何でも御相談下さい。
短い工期にも関わらず親身になって対応いただき、心強く感じました。新たに増築した空間は車いすでの生活も想定されていて、雨の日でも濡れることなく駐車場から車いすのまま直接部屋に入ることができます。水まわりもほとんど歩かずに使用できる設計になっていて、日々の生活がとても快適です。限られたスペースの中に使いやすさや動線の工夫が散りばめられていて感動しました。退院して帰ってきた瞬間、「この家ならきっと大丈夫」と思えたことが心に残っています。車いす生活にはならなかったものの、便利に使用しています。
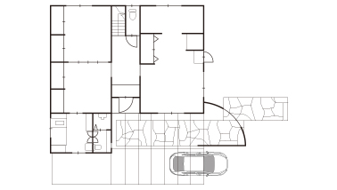
1階が書道・着付けの教室、2階が生活空間のお住まい。退院後、車いすでも利用できるように1階に生活スペースを整えました。工期が限られていたため9.9㎡分を増築し、最小限の動きで使えるようにベッド、トイレ、洗面、シャワー室をレイアウト。屋根付き駐車スペースを新設し、室内へ安全に移動できるようにアプローチを整えました。
コンパクトな空間に必要な機能を収め、手すりの設置や動作の負担軽減まで考えた提案力に感服。車からスロープを通り、増築した居室スペースまでスムーズに移動できる設計は、身体の状態に関わらず便利な動線。お施主様の安心につながっています。

お客様一人一人にご満足いただけるこだわりの提案をさせていただきます。住まいの事なら何でも御相談下さい。