
株式会社マエダハウジング 府中店(広島県安芸郡)

ありふれた日常をテーマに、新しい住まい方を提案。
和室を上手く使えていなかったのですが、今ではリビングより過ごす時間が長くなっているような気がします。一人の時間を過ごしたり、時には家族とゆったりとくつろいだりと、さまざまな使い方ができる場所となり、大満足です。以前は押入れにキャンプグッズを押し込んでいましたが、開放的で収納しやすいレイアウトになり、本当に良かったです。
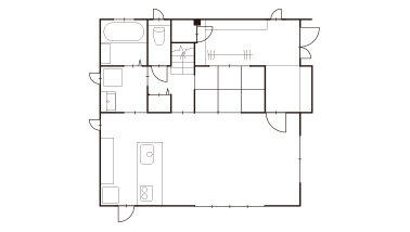
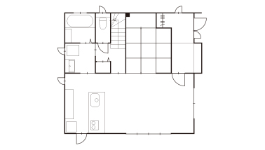
趣味のキャンプグッズや自転車のスペースを確保するため、リビングに隣接する和室の一部と押入れを取り込み、玄関土間を拡張。和室は狭さを感じさせないように、玄関土間との間にガラス戸を採用し、玄関までつながりのある空間に。玄関土間には可動棚を設置して、キャンプグッズを収納しやすいように工夫しました。
玄関土間と和室という組み合わせが新鮮。和室のスペースは縮小しているものの、玄関とつなげることで中途半端だった用途が大幅に広がり、お子さんのダンスやピアノの練習、室内物干しなどにも活躍するという提案に感心。土間の可動棚も実用的です。

ありふれた日常をテーマに、新しい住まい方を提案。