
株式会社 河原工房 高槻店(大阪府高槻市)

全国リモデル作品コンテスト15年連続受賞店!プランナーの提案を交え、お客様の“想いをかたちに”!関西エリアを3店舗で展開する、創業38年の会社です。専門部署によるアフターメンテナンスも充実。
想像以上の「おもてなしトイレ」に大満足しています。地域の方々が見学に訪れる機会も多く、「すごい」「格好いい」との声をいただくたびに誇らしさと喜びを感じています。母もよみがえった住まいに懐かしさを感じていて、「玄関からすぐにトイレに入れるのが本当にラク」と使い勝手の良さに感心しています。
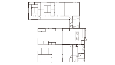
165年の古民家の魅力を地域の方々にもアピールできるように、「おもてなしトイレ」をテーマに、玄関土間から直接入れる位置にトイレを新設。古材の柱に合わせて、手洗台も古材で造作し、床にはアンティーク調の大判タイルを採用しました。日常用として、トイレ、洗面、シャワールーム、洗濯スペースを集約した多機能スペースも設けました。
「古民家の魅力を伝えるため多くのお客様を迎え入れたい」というお施主様の願いをかなえるトイレに仕上がっています。日常的に使用するトイレとは別に、玄関土間に配置したのも良いアイデア。デザインも、歴史ある古民家に溶け込んでいます。

全国リモデル作品コンテスト15年連続受賞店!プランナーの提案を交え、お客様の“想いをかたちに”!関西エリアを3店舗で展開する、創業38年の会社です。専門部署によるアフターメンテナンスも充実。