
株式会社 河原工房 西宮店(兵庫県西宮市)

全国リモデル作品コンテスト12年連続受賞店!プランナーの提案を交え、お客様の“想いをかたちに”!関西エリアを3店舗で展開する、創業38年の会社です。専門部署によるアフターメンテナンスも充実。
こんなにも美しく生まれ変わり、胸がいっぱいです。祖父母や家族の思い出が詰まったこの家を守りながら、今の暮らしに合った快適さを手に入れることができました。親戚みんなが集まっても広々と過ごすことができます。浴室は想像以上に快適で、仕事で疲れた日も一瞬で癒され、毎日の楽しみになっています。洗面室はまるでホテルのようで、使うたびに非日常の高揚感を味わえます。古民家らしい趣を残しながら、快適で清潔な空間になったことに感動しています。
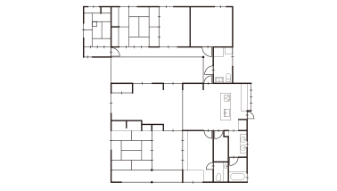
築165年の家を受け継ぎ、思い出と歴史を大切に親戚が集う拠点として再生。玄関に面していた洗面室と浴室はスペースを拡張し、DKから出入りする動線に。浴室は断熱施工とともに窓を小さくして快適に入浴できるよう改善しました。2ボウルの洗面台を造作した洗面室はダークグレーで浴室と統一し、非日常感のあるデザインを目指しました。
設備が老朽化し、寒さが深刻だった浴室、洗面室を、断熱性や機能性を高めて快適な空間に。2ボウルを採用した洗面台、隣接するパントリーを取り込んで設けた収納など、デザイン面のこだわりだけではなく、使い勝手も十分に考えられています。

全国リモデル作品コンテスト12年連続受賞店!プランナーの提案を交え、お客様の“想いをかたちに”!関西エリアを3店舗で展開する、創業38年の会社です。専門部署によるアフターメンテナンスも充実。