
ふくふくリフォーム(栃木県鹿沼市)

地域密着!街の住医にお任せください!
とにかく動線が良くなり、快適です。以前はキッチンとリビングが分かれていて疎外感がありましたが、家族と話しながら家事ができてうれしいです。リビングも収納が多く、すっきり片付けられるようになりました。ごろごろしながらゆっくり過ごせています。娘夫婦も喜んでおり、孫たちも泊まりに来るようになりました。耐震補強も行ったので災害への不安が減り、断熱施工も効果抜群で室内の温度が驚くほど変わりました。快適で安全な家にとても満足しています。
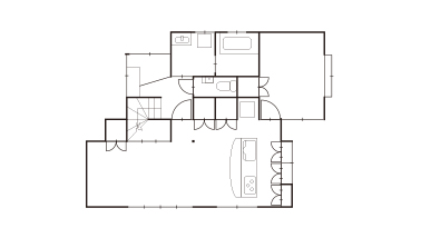
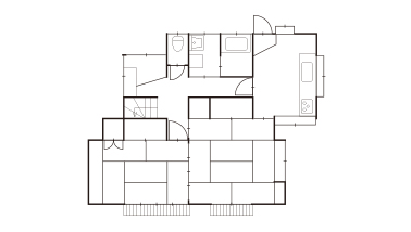
和室2間を一体化してLDKに変更し、対面式キッチンに。家事をしながら家族とコミュニケーションが取れるようにレイアウトしました。出窓のサイズを小さくしてキッチン背面の収納スペースに活用。冷蔵庫はキッチンとダイニングの双方から取り出しやすい位置に配置しました。既存の床の間と押入れは、開き扉の収納に造り替えています。
広々としたLDKにより、生活のしやすさが向上。キッチンの背面収納や冷蔵庫の配置など、巧みにスペースを活用しています。キッチンカウンターや下がり天井のカーブが空間に変化と優しさをプラス。ネイビーのタイルがアクセントとして機能しています。

地域密着!街の住医にお任せください!