
株式会社 家具の大正堂 リフォームさがみはら営業所(神奈川県相模原市)

インテリアとリフォームの総合提案と耐震補強ならおまかせください!経験豊かなスタッフが様々なご提案をいたします。厚木基地周辺住宅防音工事も承っております。
思い出のカウンターがLDKの中心に配置され、感動しました。並んで食事したり、カウンターバーとして活用したり、暮らしの楽しみが増えました。斜めの壁を取り入れていただいた点にも驚きました。来客時には扉を閉めて冷蔵庫を隠し、スッキリ使えるのがとても便利です。階段に設けた引戸による空調の効率の良さも実感しています。細やかな提案のおかげで、キッチンに立つのが楽しくなりました。
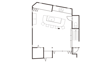
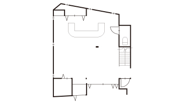
美容院だった空間を二世帯住宅のLDKにリモデル。当時から使用してきたカウンターを再利用したダイニングカウンターを中心にプランニング。斜めの壁面に合わせてセパレート型のキッチンを配置。作業がしやすいように、コンロ側よりシンク側のカウンターを高く設定しました。LDKの空調効率を高めるため、吹き抜け階段には引戸を設置しました。
思い入れの深いカウンターを再利用したキッチンが目を引きます。斜めの壁面を上手く活用した配置も洗練された印象。3台ある冷蔵庫は扉の中に収められ、空間をスッキリさせています。階段に設置した引戸を半透明にしたことで開放感も感じられます。

インテリアとリフォームの総合提案と耐震補強ならおまかせください!経験豊かなスタッフが様々なご提案をいたします。厚木基地周辺住宅防音工事も承っております。