
株式会社ゆい・リビング(愛知県西尾市)

住宅・店舗リフォーム・リノベーション専門店ゆいリビングゆいインテリアデザイン建築士事務所
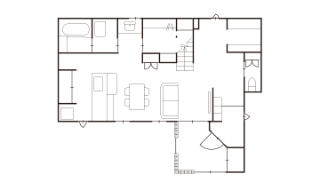
リモデルで全館空調できることに驚きました。赤ちゃんにも愛犬にも優しく、真夏も快適に過ごすことができています。リモデル前より部屋数が減るので、不便なことがないかと気になっていたのですが、実際に住んでみるととても生活しやすいです。初めての子育てに戸惑うこともある中、家事・育児がしやすい間取りで助かっています。子どもがもう少し大きくなったら、広いエントランスを利用してプール遊びができそう。雨の日はここに洗濯物が干せるのもうれしいポイントです。
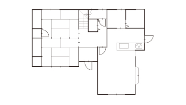
赤ちゃんや愛犬への配慮から全館空調システムを導入。配管ダクトを隠す下がり天井をR形状にして、LDKのデザインに取り入れました。全体が見渡せるように対面キッチンを採用。ランドリールーム、洗面室、ファミリークローゼットを集約し、家事の効率化を図っています。玄関には屋根付きのエントランスを新設し、多目的に使用できるようにしました。
全館空調システムは、これから子育てがスタートする若いご家族の生活の質を高めてくれそう。朝の身支度や家事動線を考えた水まわりの配置、玄関からトイレへの視線を遮る格子、室内と外をつなぐエントランスなど、細部まで丁寧に提案されています。

住宅・店舗リフォーム・リノベーション専門店ゆいリビングゆいインテリアデザイン建築士事務所