
太豊建設株式会社(東京都品川区)

社長始め、社員、職人、材料業者、設計事務所など、地元の実力者で固めております。毎月発行の情報紙や、各種イベントを通じ、地域密着のサービスを徹底して進めております。
限られた空間を最大限に活用して長年の夢だった「家族一人ひとりの個室」が実現し、生活動線も大幅に改善されました。断熱・耐震性能を大幅に強化したおかげで、猛暑でもエアコンの効きが良く、快適に過ごすことができました。耐震性も改善され、家族全員が安心して暮らしています。L字型のキッチンは作業スペースが格段に広がり、料理がとても楽しくなりました。以前はバランス釜で入浴に苦労していた浴室も、今ではボタン1つで快適なバスタイムが楽しめるようになり、母も喜んでいます。家族の想いが形になったリモデルに心から感謝しています。
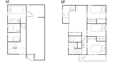
お父様が営んでいた理髪店を息子さんの美容室へと改装するとともに、住居部分も一新。1階の倉庫スペースを居室と浴室に変更し、生活空間を拡張。2階にLDKと、家族それぞれの個室を確保しました。断熱材と断熱サッシを採用し、1年を通じて快適な室内環境を整備。外観も、黒とグレーを基調にしたシックでモダンな雰囲気にデザインしました。
老朽化していた店舗兼住宅が見違えるように変身。新しい美容室にふさわしいデザインが印象的です。キッチン、浴室、トイレなど水まわりも、使い勝手のよい空間に。限られたスペースを巧みに活用し、快適に安心して暮らせる住まいへと整えられています。

社長始め、社員、職人、材料業者、設計事務所など、地元の実力者で固めております。毎月発行の情報紙や、各種イベントを通じ、地域密着のサービスを徹底して進めております。