
喜多ハウジング株式会社 能登店(石川県羽咋市)

ずっとこの場所にいたいと思うことをかなえる会社でありたい
以前は家の中でダウンジャケットを着るほど寒かったのですが、暖かく過ごせるようになりました。もともと来客の多い家なのですが、より自然に人が集まる家になりました。「泊っていってね」と安心して言えるようになったのが何よりうれしいです。小上がりの畳スペースは、ちょっと腰を下ろしてお茶を飲んだり、孫が遊んだり、団らんの中心になっています。朝の支度もスムーズになり、家事が楽になりました。寒さも不便さも過去のこととなり、本当に暮らしが変わりました。
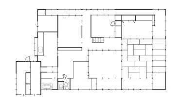
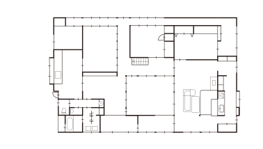
築200年の寒さの厳しいお住まい。有効活用されていなかった1階の和室をLDKに。家族が集まる居間や客間として使われていた「おえ」と隣接させ、建具を開ければLDKとつなげて使用できるよう配置し、来客の多いお施主様の暮らしにフィットさせました。エリア断熱を施したLDKにはペレットストーブも設置して、快適な住環境を実現しました。
快適性を高めたLDKと「おえ」をつなげることで、活用機会を増やすというプランニングが見事。日常生活の利便性と古民家の良さが融合し、お客様もしっかりおもてなしできる空間に。キッチンカウンター部分に造作した小上がりも使い勝手が良さそう。

ずっとこの場所にいたいと思うことをかなえる会社でありたい