
有限会社 青木住巧(愛媛県松山市)

新築・リフォーム、お家のことならなんでもお任せください。長く寄り添っていける快適な暮らしのサポートを。事前にご連絡いただければ休日も対応可能です。
間取りもインテリアも新しく生まれ変わりましたが、以前暮らしていた家の面影がどことなく感じられ、新しいのに懐かしくてホッとする不思議な感覚です。母の設計と同様に、自然豊かな立地を生かしていただき、子どものころに眺めていた窓からの風景も変わりません。母が設計した家を残したいという思いをくみ取って素晴らしい形に仕上げてくださり、本当にうれしく思っています。
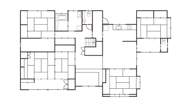
設計士だったお母様が設計した10LDKの大きな家を、4人家族の生活に合わせて減築。吹き抜けのある広い玄関ホールはリビングに変更し、玄関は駐車場に近い位置に移動。玄関から洗面、ランドリールームへつながる動線を計画しました。和室2間と広縁を一体化してダイニングキッチンに。大きな窓から庭を眺められる心地の良い空間に仕上げました。
既存の質の良さを十分に生かしながら、若いご家族の暮らしに配慮して巧みにプランニングされています。居心地の良さそうなダイニングキッチン、玄関ホールの趣が残るリビングなどデザイン面も秀逸。動線に配慮した収納計画も、実用性に優れています。

新築・リフォーム、お家のことならなんでもお任せください。長く寄り添っていける快適な暮らしのサポートを。事前にご連絡いただければ休日も対応可能です。