
喜多ハウジング株式会社 金沢店(石川県金沢市)

私にあった生活を、私らしく暮らすために
思い切ってコンパクトな平屋にしたことで、将来、子どもたちにも迷惑をかけずに安心して継承できる家になりました。終活を兼ねて荷物も整理できたので、気持ちがスッキリしました。外とのつながりが感じられ、広く見えるように工夫されているので、減築したのに以前よりも空間を広く使って暮らせている感じがします。今では気持ちが前向きになり、社交ダンスも始めました。孫たちもよく遊びに来てくれるようになり、交流の機会が増えてとてもうれしいです。
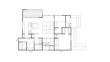
お父様が建てた家を大切にしたいけれど、広すぎて不安を感じていらっしゃったお施主様に、素材を生かしながら減築し次世代に継承できるリモデルを提案。充実したセカンドライフが送れるように、キッチンから家庭菜園を眺められる窓やLDKからつながるウッドデッキなど外とのつながりも意識。歴史を受け継ぐため、玄関に障子や欄間を再利用しました。
大胆な減築により、健康に、安心して暮らせる住まいへ。明るく、暖かく生まれ変わった住まいが、お施主様の前向きな気持ちを後押しする様子が伝わります。外との関係性を重視したレイアウトや、既存を再利用した美しい玄関など、仕上がりも好印象。

私にあった生活を、私らしく暮らすために