
井尻ハウビング 京都店(京都府京都市)

こんにちは井尻ハウビング京都店です!
倉庫として使用していて老朽化しており、本当に住めるのか不安でした。人通りの多い道路に面しているため、防犯やプライバシーの心配もありました。暗い家という印象だったので、当初は2階をリビングにと考えていましたが、1階で暮らすというご提案をいただき、我に返るような気持ちに。年齢を重ねても快適に暮らせる未来を具体的にイメージできました。明るすぎず暗すぎず、心地よい光に包まれ、安心して暮らせるリフォームに大変満足しています。
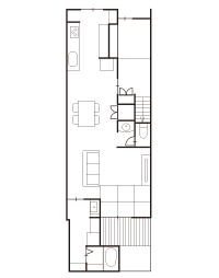
ウナギの寝床のような築100年の古民家。当初は2階リビングを計画しましたが、階段の負担を考慮し、1階を生活の中心に。人通りの多い南面は避けて北側にリビングを配置し、2階のベランダを撤去して採光を確保。畳スペースを設けて、将来的には間仕切りできるように整えました。洗面室は座って身支度できるカウンターも備えています。
厳しい立地条件の中で工夫された間取りを高く評価しました。リビングを1階の北側に配置する提案も秀逸で、庭を生かして心地よい空間を生み出しています。防犯面を考えた開口、自転車も置ける広い玄関など生活に寄り添ったリモデルを実現しています。

こんにちは井尻ハウビング京都店です!