
株式会社 鋼商(長野県長野市)

地域に密着!社会に貢献!ひとにも地球にも優しいリフォームを
最初に家族で共有したのは、「お互いの生活を大切に」ということ。それぞれの感覚に合う心地よい住まいに仕上がりました。共有の脱衣スペースが情報交換の場となり、絶妙な距離感で2つの家族がつながっています。断熱を強化したことで体感もまるで変わりました。一人ひとりの考えをしっかり受け止めいただいたので、みんなが満足し、納得のいくリモデルを実現することができました。本当に毎日快適で、両親も私たちも幸せを噛み締めています。
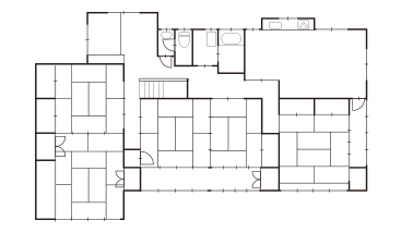
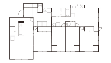
築48年の実家を二世帯住宅に。南面の大きな開口により耐震性が低く、寒さが厳しいため、窓を小さくして親世帯、子世帯それぞれの個室を配置。親世帯は既存を生かし、勝手口を玄関に整えました。子世帯は和室2間をLDKに変更し、キッチンはゆとりのあるアイランドスタイルに。玄関は既存の位置を利用し、階段下にオープンな収納スペースを確保しました。
二世帯が接する位置に共有の浴室、脱衣室を配置し、程よい距離感を保ってゾーニングされています。子世帯のLDKは、キッチンを主役にしたモダンな空間に。二世帯リモデルを機に耐震性、断熱性も向上し、快適な住まいが実現しています。

地域に密着!社会に貢献!ひとにも地球にも優しいリフォームを