
株式会社OKUTA LOHAS studioデザインチーム(埼玉県さいたま市)
リモデル後、初めて迎えた冬はとても暖かく、暖房の使用時間が大幅に短くなりました。1階の底冷えもなく、平日の朝は暖房を使うことなく出勤できます。内観も外観も希望通りのデザインになり、収納にも満足しています。回遊できる間取りも便利で、猫と追いかけっこをして楽しんだりしています。
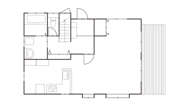
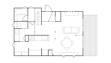
日射シミュレーションを行い、夏冬の日射時間と範囲を可視化。窓のサイズを小さくしたり、眺望や通風に効果のない窓は撤去するなど配置を調整し、断熱性能を高めました。玄関を風除室のように扱うことでLDKに廊下を取り込み、スペースを拡張。キッチンからパントリー、洗面室へとつながる回遊動線を設け、家事の負担を軽減しました。
キッチンと水まわりをコンパクトに配置し、家事効率を向上させた間取りが巧み。サッシ交換、断熱材以外に、窓の位置も計算した断熱性能の向上や、白を基調にしたインテリア、収納の工夫など、快適な住まいを実現するためのポイントが詰まっています。