
株式会社 匠工房 野洲店(滋賀県野洲市)

リフォームで大切な事は「お客様の生活のご不満を解消すること」です。100人のお客様がいらっしゃれば、100の悩み、不満があります。また、予算もそれぞれ違います。だからこそ、時間をかけ、何度も打ち合わせをすることで、本当にお客様にとって必要なものを、お客様の予算に応じてご提案させて頂いています。
リビングに家族が自然と集まり、私たちはテレビ鑑賞、その横で母は坪庭を眺めるのが日課に。水まわりが母の部屋に近く、段差もなくなったので自分自身で移動できるようになり、とても喜んでいます。共働きなので家族の朝の支度と家事が重なったり、遠い水まわりへ行くだけでも手間に感じていましたが、集約されて時短になりました。子どもたちも、自分たちの荷物をいろいろなところに置いていましたが、整理整頓の習慣ができたようです。
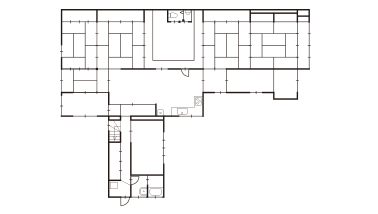
築68年の古民家。5人家族にはLDKが狭いため、坪庭に面した和室をリビングに変更。キッチンは対面式を採用し、坪庭とリビングを見渡しながら効率よく家事ができるように配置しました。トイレは高齢のお母様の寝室から近い位置に新しく設け、浴室も集約。段差の解消や断熱性能の向上など、快適に暮らせる環境を整備しました。
坪庭を暮らしに取り入れたプランニング、重厚な梁など既存を生かした仕上がりが魅力的な作品。ダイニングに上着やカバン用の収納を設けたり、家事動線と重ならないように廊下に洗面台を設置したり、日々の暮らしを向上させる工夫も秀逸です。

リフォームで大切な事は「お客様の生活のご不満を解消すること」です。100人のお客様がいらっしゃれば、100の悩み、不満があります。また、予算もそれぞれ違います。だからこそ、時間をかけ、何度も打ち合わせをすることで、本当にお客様にとって必要なものを、お客様の予算に応じてご提案させて頂いています。