
石友リフォームサービス株式会社 上飯野店(富山県富山市)
新しいLDKは光が差し込んで風通しも良くなり、気づけば1日の大半をここで過ごすほどお気に入りの場所になりました。収納が増えたことで片付けがしやすくなり、部屋全体がスッキリと整うようになったのもうれしいです。家族みんなが自然とLDKに集まるようになり、会話も増えて暮らしが豊かになったように感じています。母も廊下の手すりやバリアフリーによって、移動の安心感が高まっています。これから安心して生活を楽しめる、そんな住まいに生まれ変わり、とても満足しています。
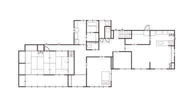
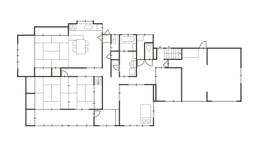
増築を重ね、つなぎ目から雨漏りなどの問題も生じていたため、減築して車庫だったスペースへLDKを移動しました。キッチンの隣に設けたユーティリティーに食器棚を収め、さらに収納棚を造作。洗面室と洗濯室を兼ねたサニタリールームにも、家族の着替えやストック品、タオルなどの収納を完備。家族4人が快適に生活できるように整えました。
車庫を活用してLDKを移動することで、心地よい空間が誕生しています。必要な箇所に十分な収納力を備えたスペースを設けている点も魅力。特にキッチンからつながるユーティリティーは使い勝手もよく、LDKをスッキリと片付けることができそうです。