
株式会社ロビン(岐阜県岐阜市)

おかげさまで岐阜県リフォーム売り上げNO.1!
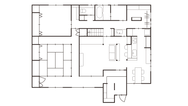
こだわりの詰まった広いLDKが実現して、毎日がとても楽しいです。特にキッチンがお気に入りで、色も使い勝手も大満足。毎日の料理のモチベーションも上がり、家事を楽しめています。使いやすい場所に使いやすい収納を設けたことで、部屋が散らからなくなったのもうれしいです。家事の回遊動線により日々の負担が減ったのはもちろん、子どもの回遊動線のおかげで子どもたちがのびのび遊べるようになったことが本当にうれしいです。私たちの想いに寄り添った提案をいただき、予算内で夢をかなえられたことに大満足しています。
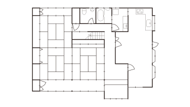
引き継いだ祖父母の家を4人家族に合わせて一新。キッチンからパントリー、ウォークインクローゼットへと抜ける回遊動線を設け、家事効率を向上させました。既存を残す部分と生活空間を断熱区画。日当たりのいい和室1間をLDKに取り込むことで、お子さんがのびのびと遊べる回遊動線が生まれました。
LDKを中心に設けた家事用の回遊動線は、日常生活の効率化に大きく寄与。インテリアも若いご家族にふさわしい明るい空間へ生まれ変わっています。吹き抜けへの憧れを、折り上げ天井や勾配天井として表現した点も良いアイデアです。

おかげさまで岐阜県リフォーム売り上げNO.1!