
株式会社山口建設(東京都練馬区)

山口建設は、5年先、10年先の暮らしを見据えた家づくりを考え、きめ細かい対応と確かなデザイン力、施工技術で満足していただける住まいづくりをお届けします。想いをこめたリフォームでお客様の夢におこたえします。
以前の間取りでは、子どもが遊んでいる横で仕事をするのが難しく、家事動線にもストレスを感じていました。私たちの要望だけではなく、「子育て中の生活がどう変わるか」「寒さや暑さがどれだけ解消されるか」という暮らしの質にまで踏み込んで提案していただき、リモデル後は理想通りの生活を送っています。広いLDKは居心地が良く、家族が自然と集まります。ワークスペースも、仕事と子育てのオン・オフの切り替えがスムーズにできるようになりました。窓を変更したおかげで冬も暖かく、静かに過ごせるようになり、住宅性能の向上を実感しています。
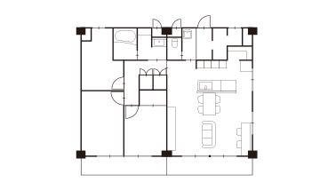
子育てと在宅ワークを両立させるため、間仕切り壁を撤去して広々としたLDKを確保。一角にスタディカウンターを設置してお子さんを見守りながら仕事に集中できる環境を整えました。玄関土間にはシューズインクローク、キッチンの背面にはパントリーと大容量の収納も確保しています。窓に真空トリプルガラスを採用し、騒音や寒さを解消しました。
家事効率、在宅ワーク用のスペースなど、仕事と子育てを両立するお施主様の要望をかなえるプランニングを実現。腰壁に汚れや傷に強いクロスを採用したり、窓枠に転落防止ガードを取り付けるなど、細部への丁寧な配慮も感じられます。

山口建設は、5年先、10年先の暮らしを見据えた家づくりを考え、きめ細かい対応と確かなデザイン力、施工技術で満足していただける住まいづくりをお届けします。想いをこめたリフォームでお客様の夢におこたえします。