
株式会社 冬頭建設/リフォームパパ(愛知県名古屋市)

地元で愛され、おかげさまで60年目を迎えます。どこに相談したら良いかわからないお客様、まずはお気軽にお問い合わせください!しつこい営業や押売りは一切いたしません!見積もり・相談は無料です!
中古住宅が想像以上の“木の家”に仕上がり、とてもうれしいです。友人の評判も良く、自慢の家になりました。特にキッチンの天井に張った羽目板とカウンターの板張りがお気に入り。ダイニングスペースで毎日リラックスした時間を過ごしています。予算の都合で床を無垢材にできませんでしたが、全体の雰囲気に調和するようにデザインしていただいたので、全く気になりません。トイレ前の廊下を活用して設けた新たな収納スペースは、子どもの荷物の片付けに大活躍。家族3人が木に囲まれて笑顔で過ごせる素敵な家が完成し、大満足しています。
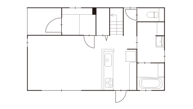
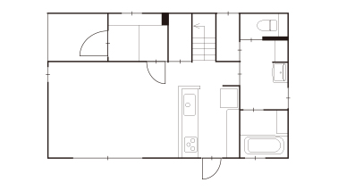
築浅の中古住宅を「森の中に住んでいるような家」に。既設の梁を生かしながら、造作梁や付柱をさらに追加。キッチン部分の下がり天井や、カウンターの腰壁には羽目板を張りました。カップボードや玄関収納などは無垢材で造作し、さらに木の質感を取り入れました。すべての木部をウォールナット色で塗装し、既設を利用する床と調和させています。
間取りは変更せず、設備機器も既設を利用して費用を抑えながら、驚くほどイメージを変化させています。洗面化粧台はミラーと照明のみ交換するなど活用する部分の選択も巧み。トイレの出入口を変更し、無駄な廊下を収納に活用したアイデアも光ります。

地元で愛され、おかげさまで60年目を迎えます。どこに相談したら良いかわからないお客様、まずはお気軽にお問い合わせください!しつこい営業や押売りは一切いたしません!見積もり・相談は無料です!