
リフォーム コニー(香川県観音寺市)

なにげない毎日がきっと好きになる・・・そんな空間を創ります。 お客様の住まいとご家族のために、細かくご相談をお伺いいたします。女性の視点で、使い勝手や将来のことも考えたプランをご家庭に合わせた内容でご提案いたします。
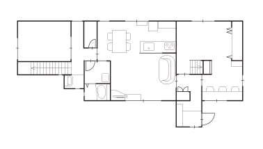
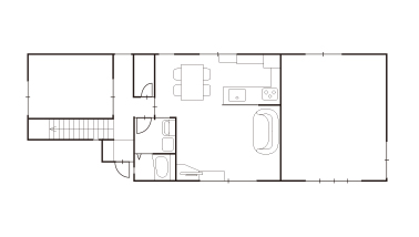
子どもたちの成長とともに、もともとのスペースでは手狭になっていました。今までより広くなった玄関、高低差のある子ども室など、とても気に入っています。学年の違う娘たちも、お互いの存在を感じながらも、邪魔にならず生活できているようです。吹き抜けなので寒さが気になるかと思っていましたが、エアコンをつけてシーリングファンを回せば問題なく、快適な温度に保てています。
中二階構造の納屋スペースを3姉妹の子ども室にリモデル。玄関の位置を移動し、ホールから子ども室に出入りできるように。リビングの床との高低差は、玄関や廊下に少しずつ段差を設けて解消しました。お子さんの成長に合わせて、個人のスペースを確保できるようにゾーニング。中二階部分は一部を吹き抜けにして開放感を演出しました。
お子さんが楽しく過ごせそうな空間に仕上がっています。既存の梁を見せた天井の高い吹き抜けは開放感抜群。学習机の壁にマグネットパネルを採用したり、階段下をランドセル収納として活用したり、各所に施した細かいアイデアも光ります。

なにげない毎日がきっと好きになる・・・そんな空間を創ります。 お客様の住まいとご家族のために、細かくご相談をお伺いいたします。女性の視点で、使い勝手や将来のことも考えたプランをご家庭に合わせた内容でご提案いたします。