
株式会社 アクアラボ 田園都市青葉台支店(神奈川県横浜市)

『安いはスキ チープはキライ』が私たちのコンセプト。“アクアラボ”は社名にもありますように、キッチンやバスルーム、トイレ、洗面所などの水廻りを最も得意とした総合住宅リフォームのプロフェッショナルです。
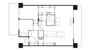
ぐるりと回れる動線や広々としたキッチン、ウォークスルー収納など、日々の暮らしが本当に快適になりました。キッチンもゆとりがあり、今では子どもと一緒にお菓子作りを楽しんでいます。収納は扉の開け閉めもなく、移動しながらサッと物を出し入れできるので、家中が自然と整い、日々の家事も早く終わるようになりました。片付け場所がわかりやすく、子どもも片付けが上手になりました。デザイン面も理想通りで、グレーを基調とした落ち着いた雰囲気や、アーチ壁のやわらかさに大満足しています。
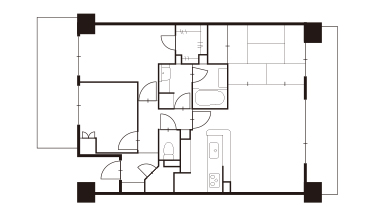
各部屋の配置は変えずに、家全体をぐるりとめぐる“8の字回遊動線”を設け、分断されている印象の間取りを改善。ドアを開け放し、光と風が住まい全体に行き渡るようにしました。あまり活用されていなかった和室はリビングに取り込み、LDKのスペースを拡張。キッチンは向きを変えてゆとりを持たせ、配膳や片付けをスムーズにしました。
大がかりな配置変更はせずに回遊動線を上手く取り入れ、お施主様のお悩みに対応。居心地の良い住まいを実現しています。3方向からアクセスできるファミリークローク、玄関とキッチンをつなぐパントリーなど収納の配置もよく練られています。

『安いはスキ チープはキライ』が私たちのコンセプト。“アクアラボ”は社名にもありますように、キッチンやバスルーム、トイレ、洗面所などの水廻りを最も得意とした総合住宅リフォームのプロフェッショナルです。