
喜多ハウジング株式会社 小松店(石川県小松市)

『ずっとここに居たいと思うこと』を叶える会社でありたい。
太い柱と梁がアクセントになって、元工場とは思えない仕上がりに大満足です。段差もほとんどなく、バリアフリーや耐震、断熱性能が向上したことで、高齢の母も安心して生活できます。施工中は県外に住んでいましたが、オンラインで打ち合わせしたり、進捗状況を細やかに報告いただいたので、安心できました。故郷に戻ってここの家で生活するのが楽しみです。
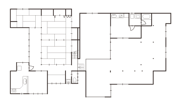
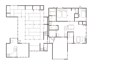
築102年の元工場と、築56年の住まいがつながる物件。インスペクションの結果、構造がしっかりしている工場部分を住宅としてリモデルすることに。一部減築し、耐震性、断熱性を十分に高めた上で、南東側にLDKを配置。梁を見せた開放的な空間を実現しました。築56年の部分も残し、新しい住居部分と行き来しやすいように通路を整えました。
老朽化や危険な段差など数多くの問題がありましたが、古民家の素材を十分に生かしながら、快適に暮らせる住まいへ。段差の解消、トイレの広い開口、玄関へのスロープなど、ご高齢のお母様の安全性を考えた配慮も隅々まで行き届いています。

『ずっとここに居たいと思うこと』を叶える会社でありたい。