
株式会社マエダハウジング 八丁堀店(広島県広島市)

住まいの夢、マエダハウジングで現実に
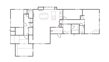
大きな家なので主に生活する空間だけリモデルし、ゾーン断熱を施してもらいましたが、昔のままの部屋に入ると違いを実感します。冬は暖かく、夏は涼しく、快適に過ごせるので本当に良かったです。浴室やトイレにも窓を新設したり、いつも光の入る明るい住まいになりました。祖父母の家がおしゃれで快適な家になり、とても満足しています。一つひとつこだわって決めたことで、愛着の湧く住まいになりました。
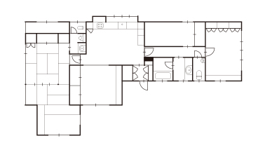
受け継いだ家が4人家族には大きすぎるため、必要な空間を限定してゾーン断熱を施しました。光の行き届かないところがないように、間取りや窓の位置を変更。勾配天井のLDKは梁を見せ、開放感を演出しました。キッチンの対面カウンターと埋め込み型の食器収納は、奥様のこだわりを形に。子ども室は将来的に間仕切りできるように設計しました。
生活に必要な空間を見極めてゾーン断熱を施した提案力が秀逸。間取りも工夫されていて、リビングからは庭が望めるなど快適な空間に。機能的な水まわり、お子さんの成長に対応できる子ども室など、若いご家族の生活を豊かにする空間に整えられています。

住まいの夢、マエダハウジングで現実に