
株式会社 イトコー(愛知県豊川市)

エコショップイトコーは家づくりの愉しさに出会うところ。「見る、聞く、触れる、参加する」をコンセプトに住まいの事や、山と木の事、水や食や農の事など、人と自然のつながりを考え、人と人を結ぶところです。暮らし方提案から安心安全をテーマに自然塗料や漆喰など住まいづくりやリフォームの相談や体感できます。
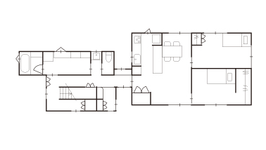
サッシ、設備交換などの断熱強化で暖かい家になりました。収納できるスペースがあらゆるところにできて、とても便利です。キッチンが広くて使いやすく、毎日の料理が楽しみになりました。水まわり設備が明るく掃除がしやすくなり、家事の負担が減りました。無垢の木に囲まれて、毎日とても心地良いです。
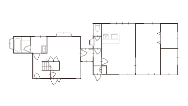
娘さんとの同居を機に、寒さや設備の老朽化などの問題を解消し、思い出の家を住み継いでいけるように整えました。浴室、洗面、トイレをまとめて配置し、動線を整理。脱衣室は大容量の収納を備えたランドリールームとして、広いスペースを確保しました。それぞれの個室はLDKと直接つなげることで、親子の時間が確保できるようにしました。
個室をプライベートゾーン、LDKをパブリックゾーンと捉え、親子の距離感を考えた提案に高いプランニング力を感じます。断熱窓などの寒さ対策、さらにシャッター付きの腰窓に変更した西日対策など、快適な暮らしのための配慮が行き届いています。

エコショップイトコーは家づくりの愉しさに出会うところ。「見る、聞く、触れる、参加する」をコンセプトに住まいの事や、山と木の事、水や食や農の事など、人と自然のつながりを考え、人と人を結ぶところです。暮らし方提案から安心安全をテーマに自然塗料や漆喰など住まいづくりやリフォームの相談や体感できます。