
喜多ハウジング株式会社 東金沢店(石川県金沢市)

石川・福井・富山のリフォームなら喜多ハウジングにご相談ください。
以前は家族を呼びたくても躊躇していましたが、家族みんなで食事を楽しむ時間も増えました。冬も暖かく過ごせて快適です。帰宅してすぐ荷物を片付けることができ、手洗いやトイレも使いやすいです。椅子中心の生活になったので足腰への負担も少なく、段差がなくなりつまずくことも減りました。娘も気軽に泊まってくれるようになり、助かっています。これからもこの家で、家族みんなで楽しく、少しでも長く過ごしていきたいです。
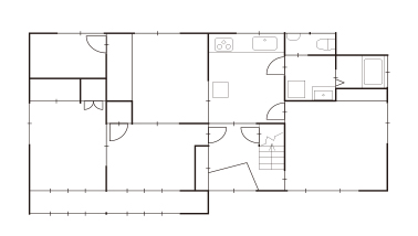
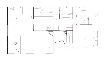
高齢のご夫婦のお住まいを、介護のしやすさと若い世代への継承を意識してリモデル。開放的なLDKで椅子中心の生活ができるように設計し、畳生活の負担を軽減。介護の際に掃き出し窓から出入りできるよう、以前の居間をご夫婦の寝室にしました。ダイニングの奥には娘さんの寝室も用意。不要になったときには納戸として活用できるように想定しました。
90歳からの暮らしを見据えながら、将来的には若い世代が受け継ぐことまで考えられたプランニングが巧み。サンルームを兼ねた脱衣室、玄関からアクセスの良いパントリーなど生活に便利な機能も充実。世代を選ばないシンプルな内装も好印象です。

石川・福井・富山のリフォームなら喜多ハウジングにご相談ください。